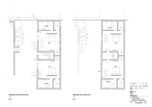
The purpose of this development was to expand the number of rooms the restaurant offered for overnight stay. It was intended that the listed barn on site be converted into 4 new bedrooms accessible from a central lobby.
Planning & Listed Building consent was obtained in 2010 with the conservation team of North Lincolnshire consenting for the use of unconventional roof lights at 1st floor in order to maximise the views over the Humber estuary.
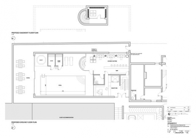
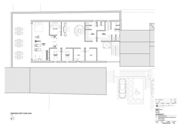
Construction of the new leisure building required demolition of the existing outbuilding attached to the main residence. The facility was designed to improve guests experience by offering a swimming pool, treatment rooms and gymnasium.
