Conversions

Barn Conversion - Sprite Lane

Sprite Lane, Billinghay



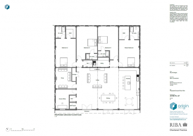
Located in the countryside just beyond Billinghay, Lincolnshire, this project sought to repurpose a barn that had outlasted its agricultural utility, proposing to convert it into a residential dwelling. The barn, a portal frame structure featuring a barrel roof and one open side, was submitted to the local planning authority via a Class Q application. This application is a form of permitted development that grants permission for the conversion of specific-sized agricultural barns into residential units.

The regulatory framework accommodates the conversion of these barns into various dwelling configurations, with an upper limit of 5 units. In this instance, our proposal reconfigured the barn into a spacious single-unit dwelling with four double bedrooms. Adhering to the legislation, the conversion was designed to stay within the confines of the existing barn's volume and make use of pre-existing features.

The application, accompanied by required third-party specialist reports, was submitted to the planning authority, and obtained approval within the statutory timeframe.

Following this approval, a new full planning application was submitted for a new build residential dwelling, replacing the original barn. This project can be found here: New Build Dwelling  - Sprite Lane

House Extensions
MORE
One Off Houses
MORE
Housing Developments
MORE
Conversions
MORE
Commercial
MORE