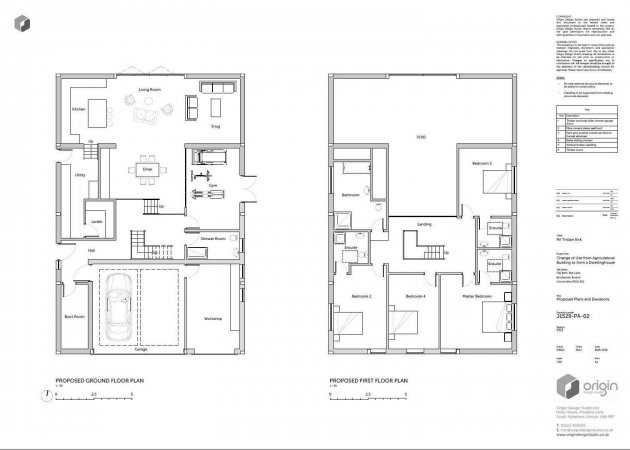
A prior approval application to convert an agricultural barn into a residential development. The location of this barn meant it fell into flood zone 3 and restrictions meant that no habitable rooms could be on the exisitng floor level. Therefore we proposed to build a raised platform for some habitable rooms at ground level; Kitchen, Living Room and Dining Room. Upstairs we had space for 4 decent sized bedrooms two en-suites and a large family bathroom.
