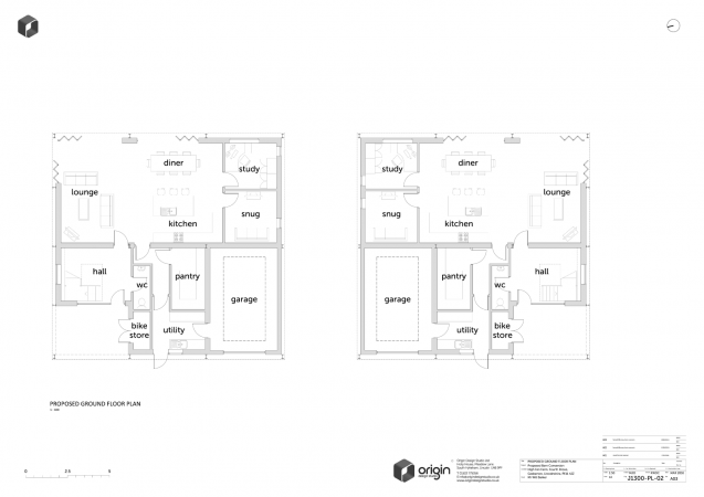
This project is the early stages of a conversion of an existing agricultural barn into two residential dwellings. Set is the landscape the dwellings will have amazing views across the Fen Lands. The project has recently been submitted for prior approval stage 2.
To find out more about this type of project or if you are interested in living in this sort of location please do not hestiate to contact us to find out more on 01522 405 100.
