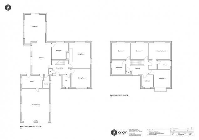
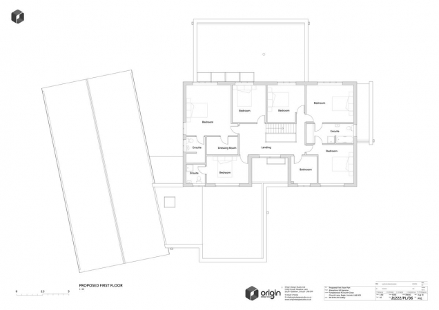
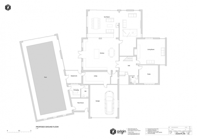
A private client wanted to make alterations and extend the existing dwelling.
Church Lane, Eagle Eagle, Lincoln, United Kingdom
Thorely Hill, Bishop Stortford Thorely Hill, Bishop Stortford, London, United Kingdom
Tanglewood, Eagle Eagle, Lincoln
Toynton All Saints Toynton All Saints, Lincolnshire, United Kingdom
Main Road, Walesby
New Dwelling - Sprite Lane Sprite Lane, Billinghay
Hambleton Grange, Hambleton Hambleton, Rutland Water, United Kingdom
Casthorpe Road Refurbishment and Extension Project, Denton Denton, Grantham
Witham Lodge, Witham on the Hill Stamford
The Clocktower, Barrowby Barrowby, Grantham
Residential Development - Poplar Farm, Algarkirk Poplar Farm, Algarkirk
New Build Residential Dwelling - Scopwick Scopwick, Lincolnshire
Witham Walk, Norton Disney Norton Disney, Lincolnshire
North Street, Digby Digby, Sleaford, Lincolnshire
Residential development for 7 properties Partney, Spilsby
Barn Conversion - Sprite Lane Sprite Lane, Billinghay
Red Roofs Barn, Brothertoft Brothertoft, Boston, Lincolnshire, United Kingdom
Kirton End, Boston Kirton End, Boston, Lincolnshire, United Kingdom
High Fen Farm, Gosberton Gosberton, Lincolnshire
Old Forge, Algarkirk Pitchers Lane, Algarkirk, Boston
Rushfield Lakes Rushfield Lakes, Potterhanworth, Lincolnshire, United Kingdom
New Office, Brunel House Deepdale Enterprise Park, Nettleham
Barn Conversion for Offices, Tealby Tealby, Market Rasen
Redevelopment of The Laurels Petrol Station Spilsby Road, Horncastle, Lincolnshire
Austins Equine Alford, Lincolnshire