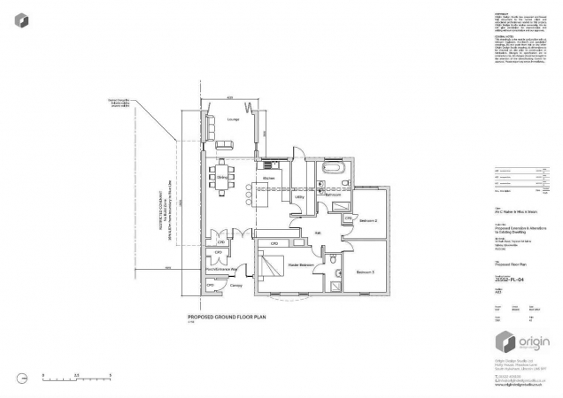
Our client wanted to demolish the existing garage and link to replace with a new side and rear extension for a large open plan kithcen and dining space and a large living room with a bi-fold unit looking out into the garden. The client was keen to utilise modern materials; Render over exisitng brick work and blue bricks as part of the new construcion. Working with the local planning authority proactively we were able to secure planning permission first time around. We produced the planning drawings, secured planning permission, produced the detailed drawings and building regulations specification.
