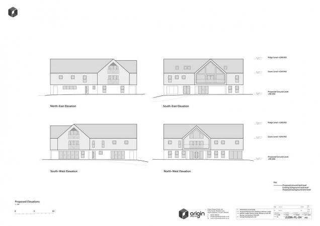
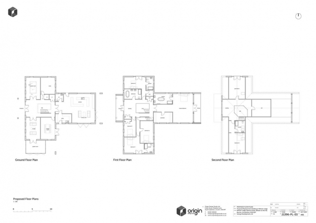
This is a house like no other that was designed and built for a developer who specialises in building 'homes not houses'. We were appoint from the start of the project and have been involved all the way through until now providing assistance to the team on site construction the six bedroom home with a triple garage.
More images will follow once the project has been completed on site.
