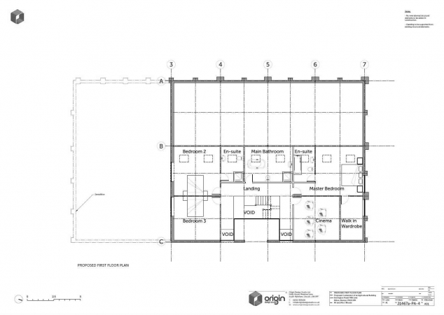
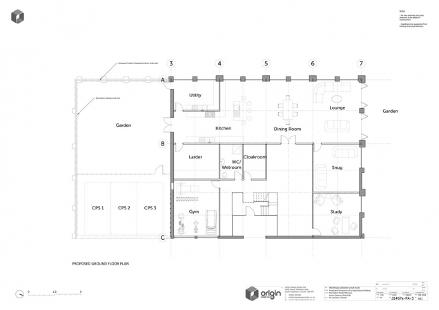
This project is to convert a previous agricultural barn no longer used by the client into a residential property. The requirements for this type of applciation require no new structurasl elements to be added. This ensures the orignal features of the barn are retained. Due to the shape and height of the barn we were able to design a property that utilised the ground floor to create a large family property with 3 bedrooms.
