House Extensions

Church Lane, Eagle

Eagle, Lincoln, United Kingdom



A very exciting project to completely renovate the exisitn ghouse into a much larger modern family home. We were approached by the client after being recommended by their neighbour whos house we had also extensively renovated - see that project here

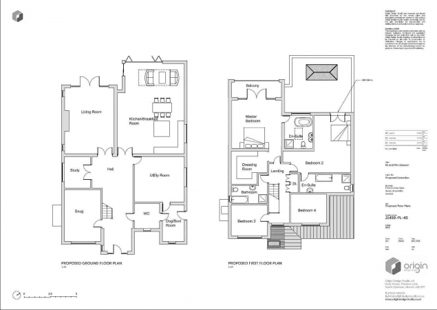
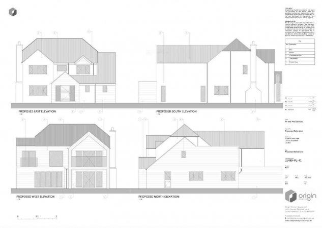
Their brief was to enlarge the property doubling the current size and add a home office on the side of the exisitng detached double garage. The exisitng materials were to be convered in white render and new brickwork to be modern coloured in a middle grey. Despite objections from the Parish Council during the Plannign Applciation the Planning Officer grated approval as the scope of work and proposed material pallet was very similar to renovation next door and this set a precedent for this street. As the street was set back from the Main Road any harm that may have been caused to the setting of the village was deemed to be minimal.

We prepared the detailed design drawings and building regualtions specification. The client was going to construct the property themselves and retained our services if any questions arose on site. Our involvment was minimal with only a few queries regarding the waterproofing of the Master Bedroom Balcony.

During the site inspections by Building Control the officer advised that this project should be nominated for the LABC Building Excellence Awards. On completion of the project we submitted our nomination of the project and are proud to say we were shortlisted as Reginoal Finalist for 2019. Origin Design Studio, the Client and their families attended the awards ceromony in May 2019 at the Athena, Leicester.

House Extensions
MORE
One Off Houses
MORE
Housing Developments
MORE
Conversions
MORE
Commercial
MORE