Conversions

Old Forge, Algarkirk

Pitchers Lane, Algarkirk, Boston



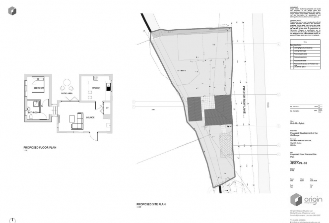
The Old Forge near Algarkirk, Boston is a red brick building that has fallen victim to time. Despite bing in a state of disrepair this property is acknowleged to be histrically signifigant. Our client would like to explore the posibility of restoring and preserving the forge by converting it to residential accomadation.

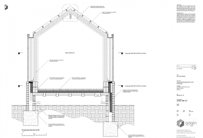
Surveying the property the building has succumbed to ivy. Inside the original blacksmithing tools are still present including the old anvils. Due to the size of the buildign being quite small we propse to create a holiday let/small 1 bedroom house. The site sits within Flood Zone 3 and through a Flood Risk Assement it is determined that the flood water would be higher than the exisitng floor levels. Inside the forge the floor cannot be lifted due to the height of the roof.

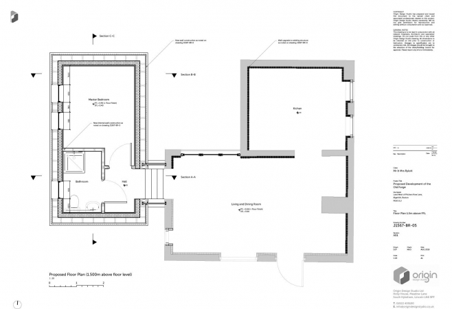
Instead it is proposed to create an extension that links to the forge that contains the Bedroom and Bathroom with a floor level above the 1 in 100 flood level that allows safe refuge for the occupants if the site is subjected to flooding. This extension connects through a glazed link to allow the mass of the Forge to be detached. The new extension is designed and orientated carefully to be suitably sized so as to not challenge the forge.

Careful detailing of the extension allows it to be constructed with clean edges with all penetrations for draiange and ventilation concealed within the construction build up. 

House Extensions
MORE
One Off Houses
MORE
Housing Developments
MORE
Conversions
MORE
Commercial
MORE