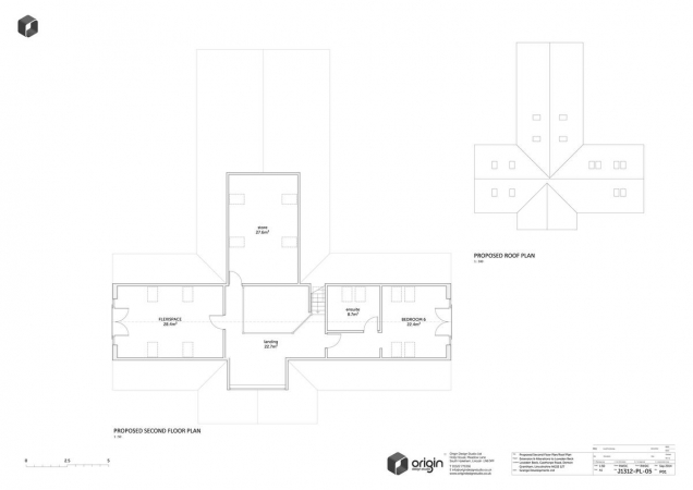
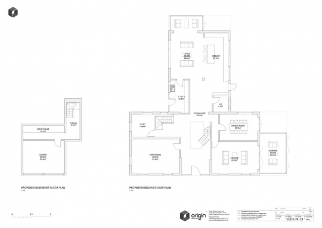
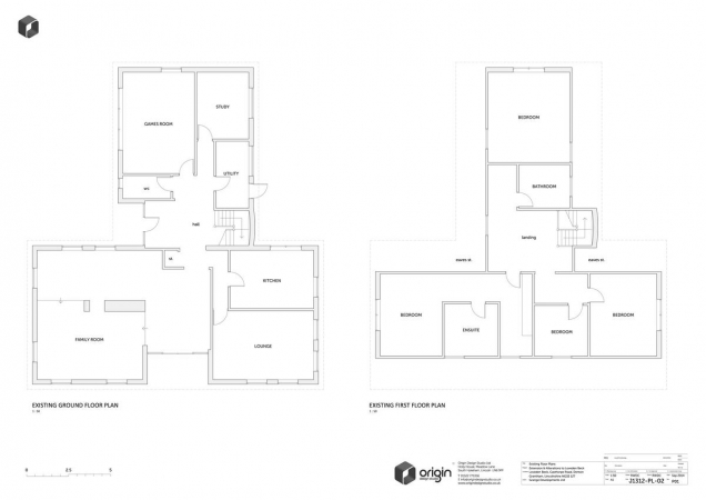
This was a unqiue venture with a developer who wanted to retain the existing bungalow but create a whole additional two levels. It was a complete success. ODS were involved from inception to completion of the project and provided regular support to the team on site.
