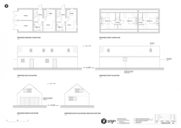
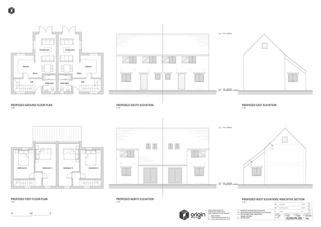
The Landlord of The Ivy Public House, approached us with his vision for a courtyard arrangment in the conservation area in the centre of Wragby. Following extensive pre application scheme development with the local authority, the final design was agreed on and the detailed planning application was submitted. Following planning permission being granted we prepared the detailed designs for the five unit scheme which was submitted and approved by Building Control for 'Full Plans' check. The project is currently on site being built. If you are interested in purchasing any of the units, please do not hestiate to call us on 01522 405 100 for more details.
